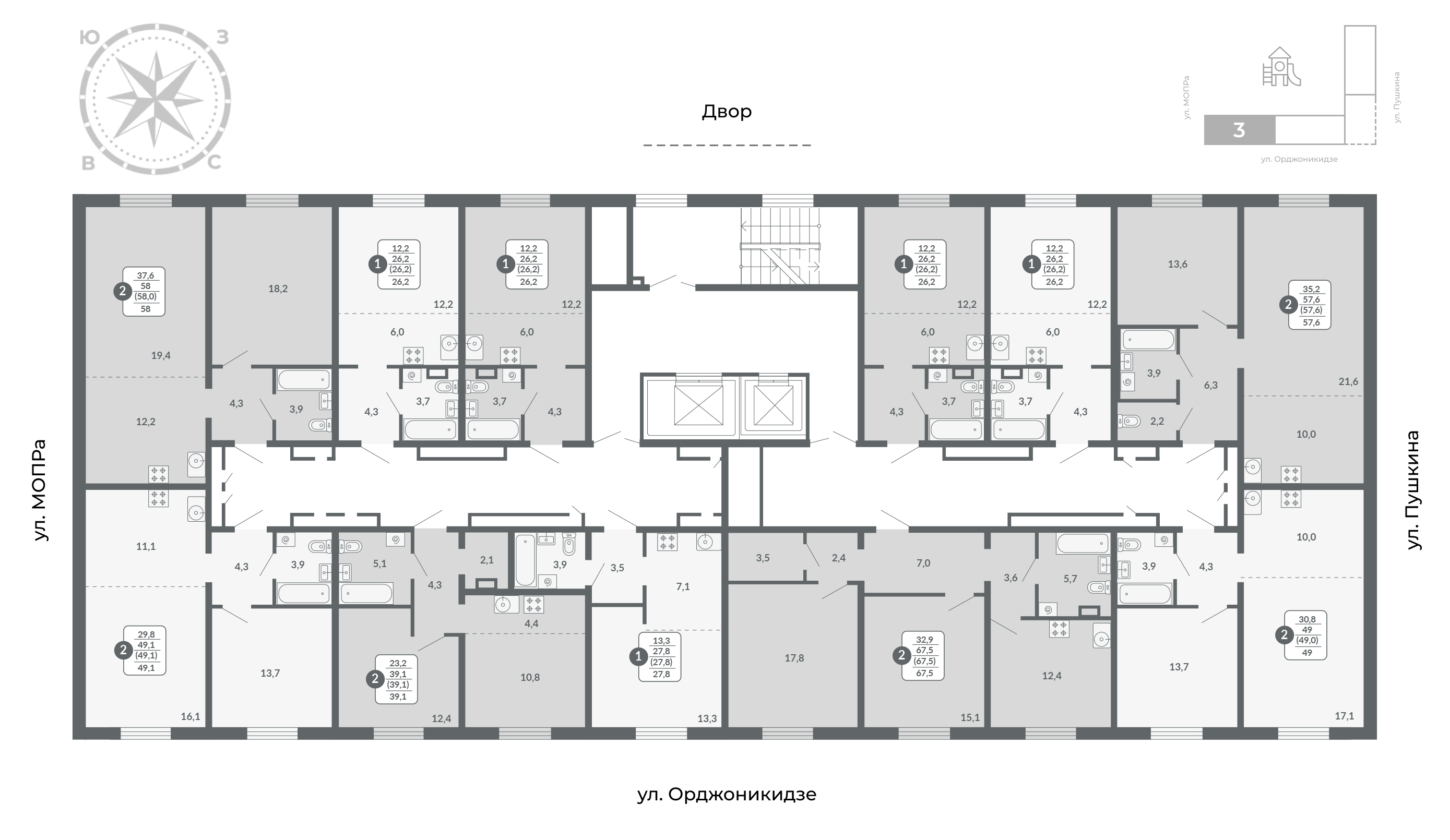
2-комнатная, 49 м²
Срок сдачи IV квартал 2026 года
-
Площадь кухни10
-
Площадь комнат30.8
-
РайонМОПРа, 1б
-
Этаж3, 4
-
Этажность17
-
Тип домапанельный
-
АртикулП25-367
Квартиры с данной планировкой
-
3 этажПод отделкуП25-3675 145 000 ₽
-
4 этажПод отделкуП25-3785 145 000 ₽
*Цены несут ознакомительный характер. Не является публичной офертой
Оставьте заявку на консультацию
Специалисты отдела продаж свяжутся с вами в ближайшее время
Вы успешно оставили заявку
Наш менеджер перезвонит вам в ближайшее время
www.pushkina.kssk.ru
dom@kssk.ru
+7(8332)71-44-44
2-комнатная, 49 м²
Артикул: П25-367
Срок сдачи IV квартал 2026 года
Планировка
План этажа
-
Площадь кухни10
-
Площадь комнат30.8
-
РайонМОПРа, 1б
-
Этаж3, 4
-
Этажность17
-
Тип домапанельный
-
АртикулП25-367
от 5 145 000 ₽
или от 105 000 ₽ за м²
Квартиры с данной планировкой
-
3, 4 этажПод отделку5 145 000 ₽